Villa in Vendita
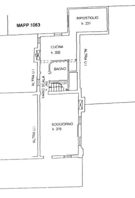
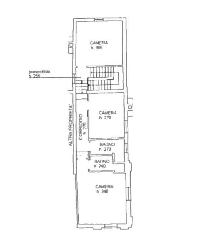
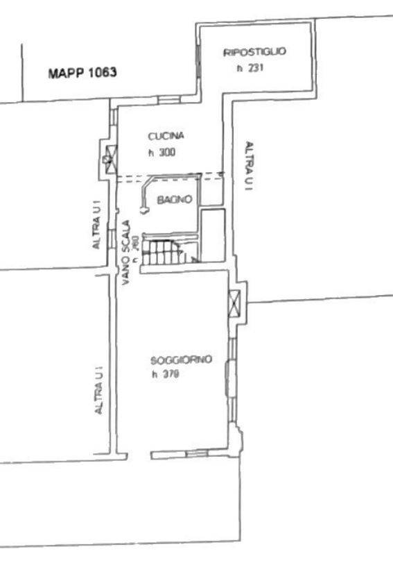
GAZZERA (VE) - zona Via Gazzera Alta - a pochi passi dal centro, proponiamo in Vendita storica BARCHESSA disposta su 2 livelli. L'immobile, RESTAURATO completamente in tempi recenti, è caratterizzato da finiture originali e dall’ottimale distribuzione degli spazi interni, offrendo un caldo ed accogliente soggiorno dotato di Caminetto, una cucina abitabile, un ampia stanza finestrata ed un Bagno. La zona notte accoglie 3 camere da letto ed altri due Bagni. Zona giorno dotata di riscaldamento a pavimento. Completano la soluzione una piccolissimo scoperto privato ed un ampio PORTICATO ad uso esclusivo ( che puo' essere utilizzato come posto auto privato ). Realizzata con uno stile classico che valorizza le favolose Capriate a vista e con materiali di ottima qualità, è la scelta ideale per chi cerca l'indipendenza senza però rinunciare alla comodità di essere vicini al centro città. NON ha Garage ne Giardino. Abitabile fin da subito....Condizioni Favolose !!! Per proteggere la privacy dei proprietari, ricordiamo che la posizione sulla mappa è puramente indicativa. Maggiori Informazioni In Agenzia "Commerciale Casa Mestre" Via Ca' rossa n.85 (Rif.RVME363)
Classe energetica
EP glnr: 161.99 kwh/m²





























