Locale commerciale in Vendita
VENDESI Locale commerciale – Martellago CENTRO
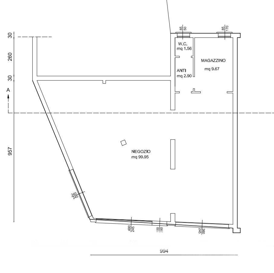
Nel cuore di Martellago, in una posizione di assoluto rilievo e ad alta frequentazione, proponiamo in Vendita un Locale commerciale di circa 120 mq, affacciato direttamente su strada principale. Le 3 ampie vetrine fronte strada assicurano un’eccellente esposizione e una visibilità costante, ideale sia per il traffico pedonale che automobilistico. Caratterizzato da uno Spazioso ambiente OPEN SPACE è facilmente adattabile a diverse tipologie di attività:Negozio, Show Room ed Ufficio. Dotato di Servizio igienico con antibagno e locale spogliatoio, l'immobile si trova in condizioni favolose e non necessita di restauri di alcun genere. Classe Energetica F. Maggiori informazioni in Ufficio Commerciale Casa Mestre Via Ca rossa 85 (Cod Rif. CVMAR359).
Classe energetica
EP glnr: 168.87 kwh/m²












